Metalen kolom OSP
De configureerbare metalen kolom OSP kan worden gebruikt voor het dragen van axiale belastingen tot gebruiksklasse 3. De OSP bestaat uit een ronde buis en een aan elk uiteinde naar keuze aangelast plaatje.
Product Details
Kenmerken
Materiaal
- Staal S235JR overeenkomstig EN 10025-2 en thermisch verzinkt overeenkomstig EN ISO 1461,
- Mogelijke afwerkingen : thermische verzinking, roestwerende verf (binnengebruik), poedercoating,
- Een rvs kolom is mogelijk op verzoek, belastingwaarden beschikbaar in de ETA.
Voordelen
- Druksterkte,
- Opvang van opwaartse druk mogelijk,
- Kan worden gebruikt op hout of beton,
- Uitlijningsstrepen op de plaatjes vergemakkelijken het plaatsen,
- Verf op verzoek.
Discontinued Products
Variant Status Details
Technische gegevens
Algemene productbeschrijving
De kolom OSP is de combinatie van een buis en aan elk uiteinde aangelaste plaatjes, uitgekozen uit 7 verschillende instelbare plaatjes. De beschikbare instellingen van buis en plaatjes staan hieronder beschreven.
Op de onderstaande tabellen komt de karakteristieke sterkte van een configuratie van OSP overeen met het minimum van de sterkten van de gekozen plaatjes. De controle van de buis en de lassen is in die sterkten inbegrepen. Dit product kan worden bevestigd op beton en op hout voor het dragen van axiale belastingen (druk- of treksterkte).
Op de onderstaande tabellen komt de karakteristieke sterkte van een configuratie van OSP overeen met het minimum van de sterkten van de gekozen plaatjes. De controle van de buis en de lassen is in die sterkten inbegrepen.
Voor de plaatjes SP6, 7 en 8 waarvan de breedte A verschilt van die in de tabellen, moet de gebruiker kijken naar het minimum van de sterkten van de twee dichtstbije breedten.
De in deze tabellen aangegeven sterkten zijn karakteristieke sterkten in de zin van EN1995-1-1 en moeten worden vermenigvuldigd met de factor kmod en gedeeld door γm.
* De druksterkte is haaks op de houtvezel, voor een klasse C24 of hoger.
** Voor plaatjes SP6, SP7 of SP8 moet de treksterkte haaks op de houtvezel door de gebruiker worden gecontroleerd.
*** De sterkte van de verankeringen moet door de gebruiker worden gecontroleerd.
De druksterkten haaks op de houtvezel R1.k gelden alleen als er zich geen geconcentreerde belasting op een afstand van minder dan 2h bevindt, waarbij h de hoogte van de balk voorstelt. De druksterkten haaks op de houtvezel R1.k kunnen worden vermenigvuldigd met 1,16 als gelijmd gelamineerd hout wordt gebruikt.
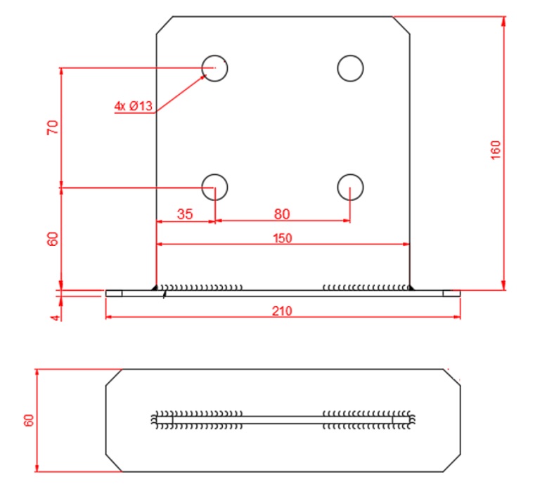
SP3 Afmetingen
| Referentie | Mål [mm] | Bevestigingen | ||||||||
|---|---|---|---|---|---|---|---|---|---|---|
| Afmetingen van de elementen | Aanverwante buis diam. G | Boorgaten plaatje | Op hout | Op beton | ||||||
| A | B | C | Dikte | Aantal | Typ | Aantal | Typ | |||
| SP3/Ø89 | 150 | 150 | - | 4 | 89 | 3 Ø14 | 3 | Ø12 | 3 | Ø12 |
| SP3/Ø102 | 160 | 160 | - | 4 | 102 | 3 Ø14 | 3 | Ø12 | 3 | Ø12 |
| SP3/Ø114 | 180 | 180 | - | 4 | 114 | 3 Ø14 | 3 | Ø12 | 3 | Ø12 |
| SP3/Ø140 | 180 | 180 | - | 4 | 140 | 3 Ø14 | 3 | Ø12 | 3 | Ø12 |
SP4 Afmetingen
| Referentie | Mål [mm] | Bevestigingen | ||||||||
|---|---|---|---|---|---|---|---|---|---|---|
| Afmetingen van de elementen | Aanverwante buis diam. G | Boorgaten plaatje | Op hout | Op beton | ||||||
| A | B | C | Dikte | Aantal | Typ | Aantal | Typ | |||
| SP4/Ø89/80 | 80 | 160 | - | 4 | 89 | 2 Ø12 | 2 | Ø10 | 2 | Ø10 |
| SP4/Ø89/90 | 90 | 170 | - | 4 | 89 | 2 Ø12 | 2 | Ø10 | 2 | Ø10 |
| SP4/Ø89/100 | 100 | 180 | - | 4 | 89 | 2 Ø14 | 2 | Ø12 | 2 | Ø12 |
| SP4/Ø89/120 | 120 | 200 | - | 4 | 89 | 2 Ø14 | 2 | Ø12 | 2 | Ø12 |
| SP4/Ø102/90 | 90 | 170 | - | 4 | 102 | 2 Ø12 | 2 | Ø10 | 2 | Ø10 |
| SP4/Ø102/100 | 100 | 180 | - | 4 | 102 | 2 Ø14 | 2 | Ø12 | 2 | Ø12 |
| SP4/Ø102/120 | 120 | 200 | - | 4 | 102 | 2 Ø14 | 2 | Ø12 | 2 | Ø12 |
| SP4/Ø114/100 | 100 | 180 | - | 4 | 114 | 2 Ø14 | 2 | Ø12 | 2 | Ø12 |
| SP4/Ø114/120 | 120 | 200 | - | 4 | 114 | 2 Ø14 | 2 | Ø12 | 2 | Ø12 |
| SP4/Ø114/140 | 140 | 220 | - | 4 | 114 | 2 Ø18 | 2 | Ø16 | 2 | Ø16 |
| SP4/Ø114/150 | 150 | 230 | - | 4 | 114 | 2 Ø18 | 2 | Ø16 | 2 | Ø16 |
| SP4/Ø140/120 | 120 | 200 | - | 4 | 140 | 2 Ø14 | 2 | Ø12 | 2 | Ø12 |
| SP4/Ø140/140 | 140 | 220 | - | 4 | 140 | 2 Ø18 | 2 | Ø16 | 2 | Ø16 |
| SP4/Ø140/150 | 150 | 230 | - | 4 | 140 | 2 Ø18 | 2 | Ø16 | 2 | Ø16 |
SP5 Afmetingen
| Referentie | Mål [mm] | Bevestigingen | ||||||||
|---|---|---|---|---|---|---|---|---|---|---|
| Afmetingen van de elementen | Aanverwante buis diam. G | Boorgaten plaatje | Op hout | Op beton | ||||||
| A | B | C | Dikte | Aantal | Typ | Aantal | Typ | |||
| SP5/Ø89/80 | 80 | 240 | - | 4 | 89 | 2 Ø12 | 2 | Ø10 | 2 | Ø10 |
| SP5/Ø89/90 | 90 | 250 | - | 4 | 89 | 2 Ø12 | 2 | Ø10 | 2 | Ø10 |
| SP5/Ø89/100 | 100 | 260 | - | 4 | 89 | 2 Ø14 | 2 | Ø12 | 2 | Ø12 |
| SP5/Ø89/120 | 120 | 280 | - | 4 | 89 | 2 Ø14 | 2 | Ø12 | 2 | Ø12 |
| SP5/Ø102/80 | 80 | 240 | - | 4 | 102 | 2 Ø12 | 2 | Ø10 | 2 | Ø10 |
| SP5/Ø102/90 | 90 | 250 | - | 4 | 102 | 2 Ø12 | 2 | Ø10 | 2 | Ø10 |
| SP5/Ø102/100 | 100 | 260 | - | 4 | 102 | 2 Ø14 | 2 | Ø12 | 2 | Ø12 |
| SP5/Ø102/120 | 120 | 280 | - | 4 | 102 | 2 Ø14 | 2 | Ø12 | 2 | Ø12 |
| SP5/Ø114/90 | 90 | 250 | - | 4 | 114 | 2 Ø12 | 2 | Ø10 | 2 | Ø10 |
| SP5/Ø114/100 | 100 | 260 | - | 4 | 114 | 2 Ø14 | 2 | Ø12 | 2 | Ø12 |
| SP5/Ø114/120 | 120 | 280 | - | 4 | 114 | 2 Ø14 | 2 | Ø12 | 2 | Ø12 |
| SP5/Ø114/140 | 140 | 300 | - | 4 | 114 | 2 Ø18 | 2 | Ø16 | 2 | Ø16 |
| SP5/Ø114/150 | 150 | 310 | - | 4 | 114 | 2 Ø18 | 2 | Ø16 | 2 | Ø16 |
| SP5/Ø140/120 | 120 | 280 | - | 4 | 140 | 2 Ø14 | 2 | Ø12 | 2 | Ø12 |
| SP5/Ø140/140 | 140 | 300 | - | 4 | 140 | 2 Ø18 | 2 | Ø16 | 2 | Ø16 |
| SP5/Ø140/150 | 150 | 310 | - | 4 | 140 | 2 Ø18 | 2 | Ø16 | 2 | Ø16 |
SP6 Afmetingen
| Referentie | Mål [mm] | Bevestigingen | ||||||||||
|---|---|---|---|---|---|---|---|---|---|---|---|---|
| Afmetingen van de elementen | Aanverwante buis diam. G | Boorgaten plaatje | Plate holes 2 | Op hout | Op beton | |||||||
| A | B | C | Dikte | Aantal | Typ | Type 2 | Aantal | Typ | ||||
| SP6/Ø89/75-90 | 75 - 90 | 230 | 195 - A/2 | 4 | 89 | 12 Ø7 | 12 Ø9.5 | 12 | Ø6x50 | Ø8x40 | - | - |
| SP6/Ø89/91-115 | 91 - 115 | 255 | 207,5 - A/2 | 4 | 89 | 12 Ø7 | 12 Ø9.5 | 12 | Ø6x50 | Ø8x40 | - | - |
| SP6/Ø89/116-129 | 116 - 129 | 282 | 221 - A/2 | 4 | 89 | 12 Ø7 | 12 Ø9.5 | 12 | Ø6x50 | Ø8x40 | - | - |
| SP6/Ø102/75-90 | 75 - 90 | 230 | 195 - A/2 | 4 | 102 | 12 Ø7 | 12 Ø9.5 | 12 | Ø6x50 | Ø8x40 | - | - |
| SP6/Ø102/91-115 | 91 - 115 | 255 | 207,5 - A/2 | 4 | 102 | 12 Ø7 | 12 Ø9.5 | 12 | Ø6x50 | Ø8x40 | - | - |
| SP6/Ø102/116-142 | 116 - 142 | 282 | 221 - A/2 | 4 | 102 | 12 Ø7 | 12 Ø9.5 | 12 | Ø6x50 | Ø8x40 | - | - |
| SP6/Ø114/91-115 | 91 - 115 | 255 | 207,5 - A/2 | 4 | 114 | 12 Ø7 | 12 Ø9.5 | 12 | Ø6x50 | Ø8x40 | - | - |
| SP6/Ø114/116-142 | 116 - 142 | 282 | 221 - A/2 | 4 | 114 | 12 Ø7 | 12 Ø9.5 | 12 | Ø6x50 | Ø8x40 | - | - |
| SP6/Ø140/116-142 | 116 - 142 | 282 | 221 - A/2 | 4 | 140 | 12 Ø7 | 12 Ø9.5 | 12 | Ø6x50 | Ø8x40 | - | - |
SP7 Afmetingen
| Referentie | Mål [mm] | Bevestigingen | ||||||||||
|---|---|---|---|---|---|---|---|---|---|---|---|---|
| Afmetingen van de elementen | Aanverwante buis diam. G | Boorgaten plaatje | Plate holes 2 | Op hout | Op beton | |||||||
| A | B | C | Dikte | Aantal | Typ | Type 2 | Aantal | Typ | ||||
| SP7/Ø89/75-114 | 75-114 | A + 84 | 150 | 4 | 89 | 12 Ø7 | 12 Ø9.5 | 12 | Ø6x50 | Ø8x40 | - | - |
| SP7/Ø89/115-129 | 115-129 | A + 84 | 150 | 4 | 89 | 12 Ø7 | 12 Ø9.5 | 12 | Ø6x50 | Ø8x40 | - | - |
| SP7/Ø89/75-79 | 75-79 | A + 84 | 150 | 4 | 89 | 12 Ø7 | 12 Ø9.5 | 12 | Ø6x50 | Ø8x40 | - | - |
| SP7/Ø89/80-89 | 80-89 | A + 84 | 150 | 4 | 89 | 12 Ø7 | 12 Ø9.5 | 12 | Ø6x50 | Ø8x40 | - | - |
| SP7/Ø89/90-99 | 90-99 | A + 84 | 150 | 4 | 89 | 12 Ø7 | 12 Ø9.5 | 12 | Ø6x50 | Ø8x40 | - | - |
| SP7/Ø89/100-114 | 100-114 | A + 84 | 150 | 4 | 89 | 12 Ø7 | 12 Ø9.5 | 12 | Ø6x50 | Ø8x40 | - | - |
| SP7/Ø89/115-119 | 115-119 | A + 84 | 150 | 4 | 89 | 12 Ø7 | 12 Ø9.5 | 12 | Ø6x50 | Ø8x40 | - | - |
| SP7/Ø89/120-129 | 120-129 | A + 84 | 150 | 4 | 89 | 12 Ø7 | 12 Ø9.5 | 12 | Ø6x50 | Ø8x40 | - | - |
| SP7/Ø102/90-99 | 90-99 | A + 84 | 150 | 4 | 102 | 12 Ø7 | 12 Ø9.5 | 12 | Ø6x50 | Ø8x40 | - | - |
| SP7/Ø102/100-114 | 100-114 | A + 84 | 150 | 4 | 102 | 12 Ø7 | 12 Ø9.5 | 12 | Ø6x50 | Ø8x40 | - | - |
| SP7/Ø102/115-119 | 115-119 | A + 84 | 150 | 4 | 102 | 12 Ø7 | 12 Ø9.5 | 12 | Ø6x50 | Ø8x40 | - | - |
| SP7/Ø102/120-139 | 120-139 | A + 84 | 150 | 4 | 102 | 12 Ø7 | 12 Ø9.5 | 12 | Ø6x50 | Ø8x40 | - | - |
| SP7/Ø114/100-139 | 100-139 | A + 84 | 150 | 4 | 114 | 12 Ø7 | 12 Ø9.5 | 12 | Ø6x50 | Ø8x40 | - | - |
| SP7/Ø114/100-114 | 100-114 | A + 84 | 150 | 4 | 114 | 12 Ø7 | 12 Ø9.5 | 12 | Ø6x50 | Ø8x40 | - | - |
| SP7/Ø114/115-119 | 115-119 | A + 84 | 150 | 4 | 114 | 12 Ø7 | 12 Ø9.5 | 12 | Ø6x50 | Ø8x40 | - | - |
| SP7/Ø114/120-139 | 120-139 | A + 84 | 150 | 4 | 114 | 12 Ø7 | 12 Ø9.5 | 12 | Ø6x50 | Ø8x40 | - | - |
| SP7/Ø114/140-142 | 140-142 | A + 84 | 150 | 4 | 114 | 12 Ø7 | 12 Ø9.5 | 12 | Ø6x50 | Ø8x40 | - | - |
| SP7/Ø140/115-119 | 115-119 | A + 84 | 150 | 4 | 140 | 12 Ø7 | 12 Ø9.5 | 12 | Ø6x50 | Ø8x40 | - | - |
| SP7/Ø140/120-139 | 120-139 | A + 84 | 150 | 4 | 140 | 12 Ø7 | 12 Ø9.5 | 12 | Ø6x50 | Ø8x40 | - | - |
| SP7/Ø140/140-142 | 140-142 | A + 84 | 150 | 4 | 140 | 12 Ø7 | 12 Ø9.5 | 12 | Ø6x50 | Ø8x40 | - | - |
SP8 Afmetingen
| Referentie | Mål [mm] | Bevestigingen | ||||||||||
|---|---|---|---|---|---|---|---|---|---|---|---|---|
| Afmetingen van de elementen | Aanverwante buis diam. G | Boorgaten plaatje | Plate holes 2 | Op hout | Op beton | |||||||
| A | B | C | Dikte | Aantal | Typ | Type 2 | Aantal | Typ | ||||
| SP8/Ø89/75-114 | 75-114 | A + 84 | 150 | 4 | 89 | 18 Ø7 | 18 Ø9.5 | 18 | Ø6x50 | Ø8x40 | - | - |
| SP8/Ø89/115-129 | 115-129 | A + 84 | 150 | 4 | 89 | 18 Ø7 | 18 Ø9.5 | 18 | Ø6x50 | Ø8x40 | - | - |
| SP8/Ø89/75-79 | 75-79 | A + 84 | 150 | 4 | 89 | 18 Ø7 | 18 Ø9.5 | 18 | Ø6x50 | Ø8x40 | - | - |
| SP8/Ø89/80-89 | 80-89 | A + 84 | 150 | 4 | 89 | 18 Ø7 | 18 Ø9.5 | 18 | Ø6x50 | Ø8x40 | - | - |
| SP8/Ø89/90-99 | 90-99 | A + 84 | 150 | 4 | 89 | 18 Ø7 | 18 Ø9.5 | 18 | Ø6x50 | Ø8x40 | - | - |
| SP8/Ø89/100-114 | 100-114 | A + 84 | 150 | 4 | 89 | 18 Ø7 | 18 Ø9.5 | 18 | Ø6x50 | Ø8x40 | - | - |
| SP8/Ø89/115-119 | 115-119 | A + 84 | 150 | 4 | 89 | 18 Ø7 | 18 Ø9.5 | 18 | Ø6x50 | Ø8x40 | - | - |
| SP8/Ø89/120-129 | 120-129 | A + 84 | 150 | 4 | 89 | 18 Ø7 | 18 Ø9.5 | 18 | Ø6x50 | Ø8x40 | - | - |
| SP8/Ø102/80-89 | 80-89 | A + 84 | 150 | 4 | 102 | 18 Ø7 | 18 Ø9.5 | 18 | Ø6x50 | Ø8x40 | - | - |
| SP8/Ø102/90-99 | 90-99 | A + 84 | 150 | 4 | 102 | 18 Ø7 | 18 Ø9.5 | 18 | Ø6x50 | Ø8x40 | - | - |
| SP8/Ø102/100-114 | 100-114 | A + 84 | 150 | 4 | 102 | 18 Ø7 | 18 Ø9.5 | 18 | Ø6x50 | Ø8x40 | - | - |
| SP8/Ø102/115-119 | 115-119 | A + 84 | 150 | 4 | 102 | 18 Ø7 | 18 Ø9.5 | 18 | Ø6x50 | Ø8x40 | - | - |
| SP8/Ø102/120-139 | 120-139 | A + 84 | 150 | 4 | 102 | 18 Ø7 | 18 Ø9.5 | 18 | Ø6x50 | Ø8x40 | - | - |
| SP8/Ø114/100-114 | 100-114 | A + 84 | 150 | 4 | 114 | 18 Ø7 | 18 Ø9.5 | 18 | Ø6x50 | Ø8x40 | - | - |
| SP8/Ø114/115-119 | 115-119 | A + 84 | 150 | 4 | 114 | 18 Ø7 | 18 Ø9.5 | 18 | Ø6x50 | Ø8x40 | - | - |
| SP8/Ø114/120-139 | 120-139 | A + 84 | 150 | 4 | 114 | 18 Ø7 | 18 Ø9.5 | 18 | Ø6x50 | Ø8x40 | - | - |
| SP8/Ø114/140-142 | 140-142 | A + 84 | 150 | 4 | 114 | 18 Ø7 | 18 Ø9.5 | 18 | Ø6x50 | Ø8x40 | - | - |
| SP8/Ø140/115-119 | 115-119 | A + 84 | 150 | 4 | 140 | 18 Ø7 | 18 Ø9.5 | 18 | Ø6x50 | Ø8x40 | - | - |
| SP8/Ø140/120-139 | 120-139 | A + 84 | 150 | 4 | 140 | 18 Ø7 | 18 Ø9.5 | 18 | Ø6x50 | Ø8x40 | - | - |
| SP8/Ø140/140-142 | 140-142 | A + 84 | 150 | 4 | 140 | 18 Ø7 | 18 Ø9.5 | 18 | Ø6x50 | Ø8x40 | - | - |
SP1 Karakteristieke waarden
| Referentie | Aanverwante buis diam. G | R1,k - Op hout* ,haaks op de houtvezels [kN] | R1,k - Op hout, evenwijdig aan de houtvezels [kN] | R1,k -Op beton [kN] | R2,k -Op beton*** [kN] |
|---|---|---|---|---|---|
| SP1/Ø89 | 89 | 56.8 | 141.6 | 116.9 | 14.8 |
| SP1/Ø102 | 102 | 66.4 | 196.6 | 132.7 | 14.7 |
| SP1/Ø114 | 114 | 77.1 | 229.8 | 144.1 | 13.2 |
| SP1/Ø140 | 140 | 97.2 | 309.6 | 174.2 | 13 |
SP3 Karakteristieke waarden
| Referentie | Aanverwante buis diam. G | R1,k - Op hout* ,haaks op de houtvezels [kN] | R1,k - Op hout, evenwijdig aan de houtvezels [kN] | R1,k -Op beton [kN] | R2,k -Op beton*** [kN] |
|---|---|---|---|---|---|
| SP3/Ø89 | 89 | 22.4 | - | 71.5 | 7.9 |
| SP3/Ø102 | 102 | 26.9 | - | 81.5 | 7 |
| SP3/Ø114 | 114 | 29.8 | - | 90.6 | 9.1 |
| SP3/Ø140 | 140 | 38.4 | - | 111.3 | 10.5 |
SP4 Karakteristieke waarden
| Referentie | Aanverwante buis diam. G | R1,k - Op hout* ,haaks op de houtvezels [kN] | R1,k - Op hout, evenwijdig aan de houtvezels [kN] | R1,k -Op beton [kN] | R2,k -Op beton*** [kN] |
|---|---|---|---|---|---|
| SP4/Ø89/80 | 89 | 52.3 | - | 64.2 | 4.1 |
| SP4/Ø89/90 | 89 | 58.1 | - | 73.8 | 4.1 |
| SP4/Ø89/100 | 89 | 64.3 | - | 82.2 | 4.5 |
| SP4/Ø89/120 | 89 | 78.7 | - | 92.2 | 4.5 |
| SP4/Ø102/90 | 102 | 60.6 | - | 73.4 | 4.6 |
| SP4/Ø102/100 | 102 | 67.2 | - | 84.1 | 5.1 |
| SP4/Ø102/120 | 102 | 80.9 | - | 100.8 | 5 |
| SP4/Ø114/100 | 114 | 66.7 | - | 79.1 | 5.8 |
| SP4/Ø114/120 | 114 | 80.2 | - | 100.8 | 5.6 |
| SP4/Ø114/140 | 114 | 96.3 | - | 115.2 | 6.4 |
| SP4/Ø114/150 | 114 | 104.4 | - | 116.6 | 6.2 |
| SP4/Ø140/120 | 140 | 82.2 | - | 96.1 | 7.5 |
| SP4/Ø140/140 | 140 | 99.7 | - | 121.4 | 8.3 |
| SP4/Ø140/150 | 140 | 107.1 | - | 131.7 | 8 |
Total load bearing capacity is given, if two timber parts are connected with SP4 with equal contact area with the plate, then the load applied on each part shall not exceed 1/2 of the total load bearing capacity. If one timber part is only in contact on the overhang aisle of the plate then the load applied on this part shall not exceed 0.28 times the total load bearing capacity, the load applied on the other part in contact with the rest of the plate shall not exceed 0.72 times the total load bearing capacity.
SP5 Karakteristieke waarden
| Referentie | Aanverwante buis diam. G | R1,k - Op hout* ,haaks op de houtvezels [kN] | R1,k - Op hout, evenwijdig aan de houtvezels [kN] | R1,k -Op beton [kN] | R2,k -Op beton*** [kN] |
|---|---|---|---|---|---|
| SP5/Ø89/80 | 89 | 43.3 | 106.9 | 64.2 | 4 |
| SP5/Ø89/90 | 89 | 49.7 | 106.9 | 73.8 | 4.1 |
| SP5/Ø89/100 | 89 | 56.1 | 141.6 | 82.2 | 4.5 |
| SP5/Ø89/120 | 89 | 68.8 | 141.6 | 92.2 | 4.5 |
| SP5/Ø102/80 | 102 | 43.7 | 107.4 | 61.7 | 4.6 |
| SP5/Ø102/90 | 102 | 50.5 | 122.1 | 73.4 | 4.6 |
| SP5/Ø102/100 | 102 | 57.3 | 122.1 | 84.1 | 5.1 |
| SP5/Ø102/120 | 102 | 71 | 186.6 | 100.8 | 5 |
| SP5/Ø114/90 | 114 | 48.7 | 120 | 67.2 | 5.4 |
| SP5/Ø114/100 | 114 | 56 | 137.4 | 79.9 | 5.8 |
| SP5/Ø114/120 | 114 | 70.7 | 137.4 | 101.6 | 5.6 |
| SP5/Ø114/140 | 114 | 85.3 | 229.8 | 116 | 6.4 |
| SP5/Ø114/150 | 114 | 92.6 | 229.8 | 117.4 | 6.2 |
| SP5/Ø140/120 | 140 | 69.9 | 168 | 96.1 | 7.5 |
| SP5/Ø140/140 | 140 | 86.4 | 168 | 121.4 | 8.3 |
| SP5/Ø140/150 | 140 | 94.7 | 289.3 | 131.7 | 8 |
The capacities on timber perpendicular to the grain is valid if the plate is used as a intermediate support. For other configuration, please refer to ETA.
SP6 Karakteristieke waarden
| Referentie | Aanverwante buis diam. G | R1,k - Op hout* ,haaks op de houtvezels [kN] | R1,k - Op hout, evenwijdig aan de houtvezels [kN] | R2,k - Op hout** [kN] | R2,k - On timber (fasteners Ø8) ** [kN] |
|---|---|---|---|---|---|
| SP6/Ø89/75-90 | 89 | 57.6 | - | 23.7 | 26.3 |
| SP6/Ø89/91-115 | 89 | 70.1 | - | 23.7 | 26.3 |
| SP6/Ø89/116-129 | 89 | 90.9 | - | 23.7 | 26.3 |
| SP6/Ø102/75-90 | 102 | 59.2 | - | 23.7 | 26.3 |
| SP6/Ø102/91-115 | 102 | 72.3 | - | 23.7 | 26.3 |
| SP6/Ø102/116-142 | 102 | 94.3 | - | 23.7 | 26.3 |
| SP6/Ø114/91-115 | 114 | 71.4 | - | 23.7 | 26.3 |
| SP6/Ø114/116-142 | 114 | 94.6 | - | 23.7 | 26.3 |
| SP6/Ø140/116-142 | 140 | 96.1 | - | 23.7 | 26.3 |
The capacities on timber perpendicular to the grain is valid if the plate is used as a intermediate support. For other configuration, please refer to ETA.
SP7 Karakteristieke waarden
| Referentie | Aanverwante buis diam. G | R1,k - Op hout* ,haaks op de houtvezels [kN] | R1,k - Op hout, evenwijdig aan de houtvezels [kN] | R2,k - Op hout** [kN] | R2,k - On timber (fasteners Ø8) ** [kN] |
|---|---|---|---|---|---|
| SP7/Ø89/75-114 | 89 | 57.6 | - | 23.7 | 26.3 |
| SP7/Ø89/115-129 | 89 | 90.9 | - | 23.7 | 26.3 |
| SP7/Ø89/75-79 | 89 | 57.6 | - | 23.7 | 26.3 |
| SP7/Ø89/80-89 | 89 | 61.8 | - | 23.7 | 26.3 |
| SP7/Ø89/90-99 | 89 | 70.1 | - | 23.7 | 26.3 |
| SP7/Ø89/100-114 | 89 | 78.4 | - | 23.7 | 26.3 |
| SP7/Ø89/115-119 | 89 | 90.9 | - | 23.7 | 26.3 |
| SP7/Ø89/120-129 | 89 | 95 | - | 23.7 | 26.3 |
| SP7/Ø102/90-99 | 102 | 72.3 | - | 23.7 | 26.3 |
| SP7/Ø102/100-114 | 102 | 81.1 | - | 23.7 | 26.3 |
| SP7/Ø102/115-119 | 102 | 94.3 | - | 23.7 | 26.3 |
| SP7/Ø102/120-139 | 102 | 98.7 | - | 23.7 | 26.3 |
| SP7/Ø114/100-139 | 114 | 79.9 | - | 23.7 | 26.3 |
| SP7/Ø114/100-114 | 114 | 79.9 | - | 23.7 | 26.3 |
| SP7/Ø114/115-119 | 114 | 93.8 | - | 23.7 | 26.3 |
| SP7/Ø114/120-139 | 114 | 98.4 | - | 23.7 | 26.3 |
| SP7/Ø114/140-142 | 114 | 116.9 | - | 23.7 | 26.3 |
| SP7/Ø140/115-119 | 140 | 96.1 | - | 23.7 | 26.3 |
| SP7/Ø140/120-139 | 140 | 101.2 | - | 23.7 | 26.3 |
| SP7/Ø140/140-142 | 140 | 121.6 | - | 23.7 | 26.3 |
Total load bearing capacity is given, if two timber parts are connected with SP7 with equal contact area with the plate, then the load applied on each part shall not exceed 1/2 of the total load bearing capacity. If one timber part is only in contact on the overhang aisle of the plate then the load applied on this part shall not exceed 0.3 times the total load bearing capacity, the load applied on the other part in contact with the rest of the plate shall not exceed 0.7 times the total load bearing capacity.
SP8 Karakteristieke waarden
| Referentie | Aanverwante buis diam. G | R1,k - Op hout* ,haaks op de houtvezels [kN] | R1,k - Op hout, evenwijdig aan de houtvezels [kN] | R2,k - Op hout** [kN] | R2,k - On timber (fasteners Ø8) ** [kN] |
|---|---|---|---|---|---|
| SP8/Ø89/75-114 | 89 | 61.8 | - | 35.6 | 39.4 |
| SP8/Ø89/115-129 | 89 | 81.5 | - | 35.6 | 39.4 |
| SP8/Ø89/75-79 | 89 | 61.8 | - | 35.6 | 39.4 |
| SP8/Ø89/80-89 | 89 | 63.7 | - | 35.6 | 39.4 |
| SP8/Ø89/90-99 | 89 | 66.6 | - | 35.6 | 39.4 |
| SP8/Ø89/100-114 | 89 | 70.8 | - | 35.6 | 39.4 |
| SP8/Ø89/115-119 | 89 | 81.5 | - | 35.6 | 39.4 |
| SP8/Ø89/120-129 | 89 | 85 | - | 35.6 | 39.4 |
| SP8/Ø102/80-89 | 102 | 69.4 | - | 35.6 | 39.4 |
| SP8/Ø102/90-99 | 102 | 73.1 | - | 35.6 | 39.4 |
| SP8/Ø102/100-114 | 102 | 75.5 | - | 35.6 | 39.4 |
| SP8/Ø102/115-119 | 102 | 81.5 | - | 35.6 | 39.4 |
| SP8/Ø102/120-139 | 102 | 85 | - | 35.6 | 39.4 |
| SP8/Ø114/100-114 | 114 | 82.7 | - | 35.6 | 39.4 |
| SP8/Ø114/115-119 | 114 | 85.4 | - | 35.6 | 39.4 |
| SP8/Ø114/120-139 | 114 | 85.7 | - | 35.6 | 39.4 |
| SP8/Ø114/140-142 | 114 | 99.2 | - | 35.6 | 39.4 |
| SP8/Ø140/115-119 | 140 | 101.8 | - | 35.6 | 39.4 |
| SP8/Ø140/120-139 | 140 | 102.9 | - | 35.6 | 39.4 |
| SP8/Ø140/140-142 | 140 | 104.3 | - | 35.6 | 39.4 |
Total load bearing capacity is given, if three timber parts are connected with SP8 with equal contact area with the plate, then the load applied on each part shall not exceed 1/3 of the total load bearing capacity. If two timber part are connected, and one goes through the connector, then for this element SP6 capacity can be considered
Installatie
Installatie
Bevestigingen
Op beton (voor de plaatjes SP1 tot SP5) :
Chemische verankering :
- Gebruiksklasse 1 of 2: hars AT-HP en draadstang LMAS (M10, M12 of M16),
- Gebruiksklasse 3: hars AT-HP en draadstang LMAS (M10, M12 of M16) A4.
Mechanische verankering :
- Gebruiksklasse 1 of 2 : WA (M10, M12 of M16) of FM-753 CRACK 3DG (M10, M12 of M16) (-FMC onder aardbevingsbestendig voorschrift),
- Gebruiksklasse 3 : FM-753 A4 (M10 of M12)
Op hout (voor plaatjes SP6, SP7 en SP8) :
- Gebruiksklasse 1 of 2 : Houtdraadbout diameter 6 of 6,4 x 50,
- Gebruiksklasse 3 : Rvs houtdraadbout diameter 6 of 6,4 x 50.